Find exactly what you're looking for...

Chatbot Avatar
Galati Yachts AI ChatBot
Powered by AI

1989 Feadship 116 Sport Fisher

Boss

$2,990,000


Orange Beach, AL
  • 7 Staterooms
  • 5 Heads
  • 2 Engines

GYS Listing


This 1989 116’ Feadship Sport Fisher, aka “BOSS” was designed by Frits De Voogt, and considered by many a spectacular "superyacht”. To those who own a Feadship, it is a “badge of prestige in superyacht history”. The Feadship credentials date back to the early19th century when they were first introduced to America at the New York Boat Show in 1951. At the time this was the 5th Feadship ever constructed,and originally built and commissioned by renowned yachtsman Jim Moran. Subsequently, owned by Roger Penske as the "Detroit Eagle".

The current owner has added many, many upgrades such as:

  • New A/C Chiller Systems
  • Hydraulic Outriggers
  • Carpet
  • Headliner
  • New Septic System
  • Electronics
  • (2) Seakeeper 40's
  • Watermaker
  • Washer and Dryer
  • Icemaker
  • Stove Tops and Grills
  • Tables and Chairs

Set to haul 48' Custom Carolina RG Boatworks Sportfish. Also, for sale and can be purchased as a package.

 And much more, including 4200 Nautical Mile Range!

 




  • Last updated Jan 13th, 2026

Highlights

- Hydraulic Outriggers
- (2) Seakeeper 45's
- New Septic System
- 4200 Nautical Mile Range

Specifications

Quick Specs

Builder:Feadship
Country: US
Model Year: 1989

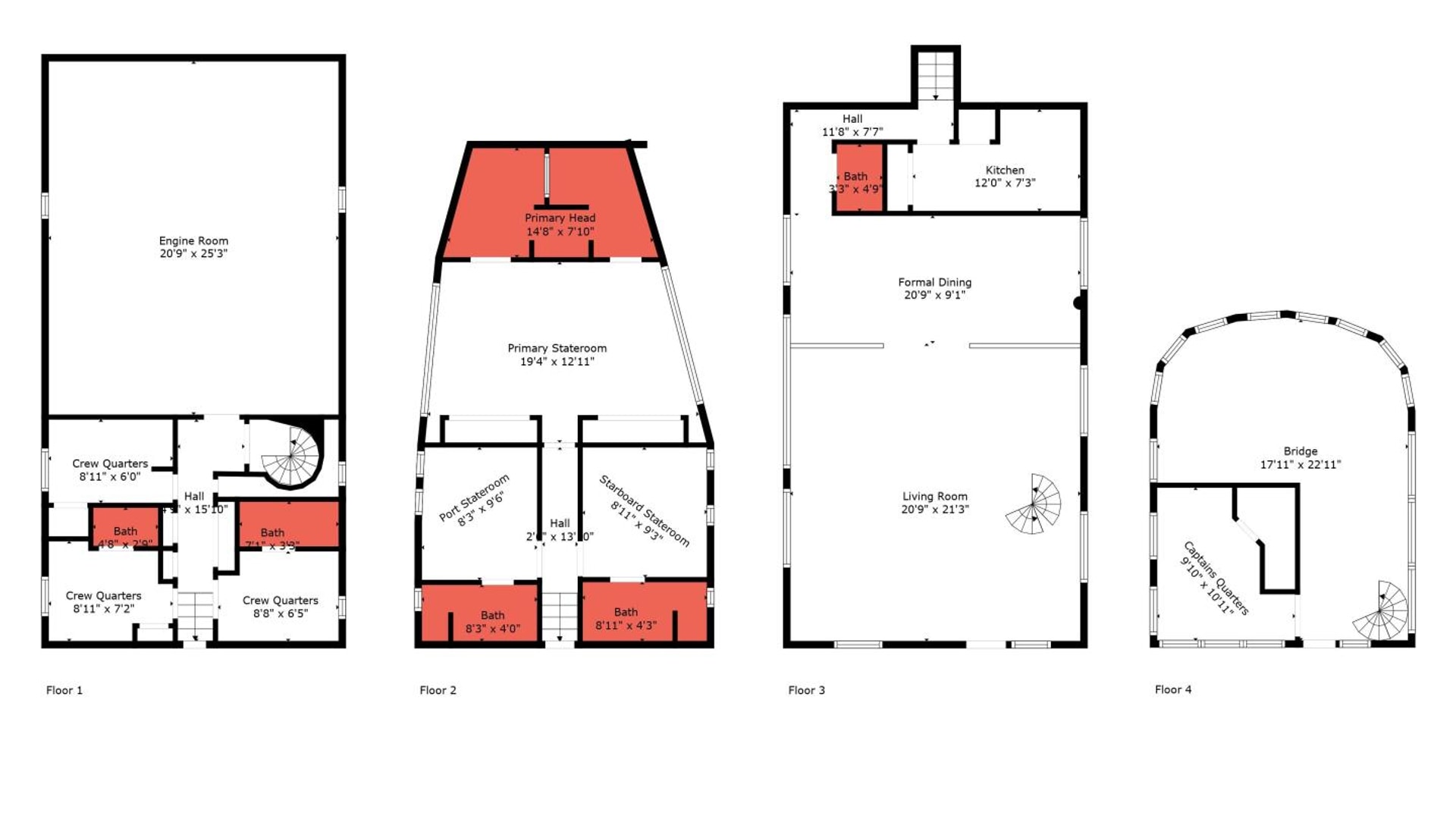
Accommodations

Cabins: 7
Heads: 5

Hull Information

Hull Material: Aluminum

Dimensions

Length: 116 ' (35.36M)
Minimum Draft: 2' (0.61M)
Maximum Draft: 5' 6" (1.68M)
Beam: 23

Speed/Weight/Capacity

Fuel Capacity: 7980 G. (30208 L.)
Water Capacity: 1585 G. (6000 L.)
Holding Tank: 411 G. (1556 L.)

Engines


Engine 1

Engine Make:
Engine Model:
Engine Year:
Engine Type:
Power HP: 2,600
Fuel Type: Diesel
Engine Hours: 7,750
Engine Hours Last Updated:
Engine Location:

Engine 2

Engine Make:
Engine Model:
Engine Year:
Engine Type:
Power HP: 2,600
Fuel Type: Diesel
Engine Hours: 7,750
Engine Hours Last Updated:
Engine Location:

Details

Recent Upgrades


  • New A/C Chiller Systems
  • Hydraulic Outriggers
  • Carpet
  • Headliner
  • New Septic System
  • Electronics
  • (2) Seakeeper 40's
  • Watermaker
  • Washer and Dryer
  • Icemaker
  • Stove Tops and Grills
  • Tables and Chairs

Accommodations


Accommodations for 10 guests.

OWNER-

  • Full beam master cabin
  • Walk-in dressing room

GUESTS-

  • Four lower deck cabins including two twin cabins and two double cabins
  • One staff cabin
  • Double cabins on lower deck can be split into twin beds if desired
  • VIP cabin on bridge deck with size comparable to master cabin

CREW-

  • Private Captains Quarters and private head on the bridge deck off of the helm area
  • Six crew cabins on lower deck – each with two bunk beds

Equipment


MAIN ENGINES-

  • 2x MTU's 16V149TA 2600 HP

ENGINE HOURS-

  • Port: 7750 (September 2024)
  • Starboard: 7750 (September 2024)

GEAR BOXES-

SHAFTS-

  • Rubber Design

PROPELLERS-

  • 5-blade out turning

SPEEDS-

  • Cruising speed: 12 knots
  • Maximum speed: 15 knots

CONSUMPTIONS-

  • 228 litres p/h at 12 knot cruising speed
  • 388 litres p/h at 15 knots maximum speed

Auxiliary Machinery & Electrical System


MAIN GENERATORS-

  • 2x Zenoro – 180kw – 1500rpm

ELECTRICITY-

  • 400 Volts Phase 3

SHORE POWER-

  • 400V phase 3 50 HZ

BATTERIES-

  • Mastervolt Super 8D 270 amp

Tank Capacities (Approximate)


FUEL- Diesel

  • 7980 gallons (30207.57 Liters)

FRESH WATER-

  • 1585 gallons (5999.87 Liters)

HOLDING TANK-

  • 411 gallons (1555.8 Liters)

Ancillary Equipment


STEERING SYSTEM-

BOW THRUSTER-

STABILIZERS-

FUEL FILTERS-

FUEL OIL SEPERATOR-

BILGE PUMP-

FIRE PUMP-

SEWAGE TREATMENT-

AIR CONDITIONING-

VENTILATION-

Communication Equipment


SATCOM-

VHF RADIOTELEPHONES-

SSB RADIOTELEPHONE-

  • SAILOR HC 4500
  • NAVTEX RECEIVER-

TELEPHONE-

UHF COMMUNICATIONS-

Domestic Equipment


MAIN GALLEY

  • Twin ovens
  • Cooktops
  • Grill

LAUNDRY

  • Washer/dryer –

PANTRY

  • Walk in freeze and fridge

CREW MESS

Microwave:

You May Be Interested In

Your search for "search criteria" didn't return any results.

Search Tips

  • Check your spelling
  • Remove some of your applied filters
  • Save your search to receive updates straight to your inbox! Click here to save.

Or

Need Help?

Contact Us
Call
Contact
yellow-arrow

Compare (0/3)